|
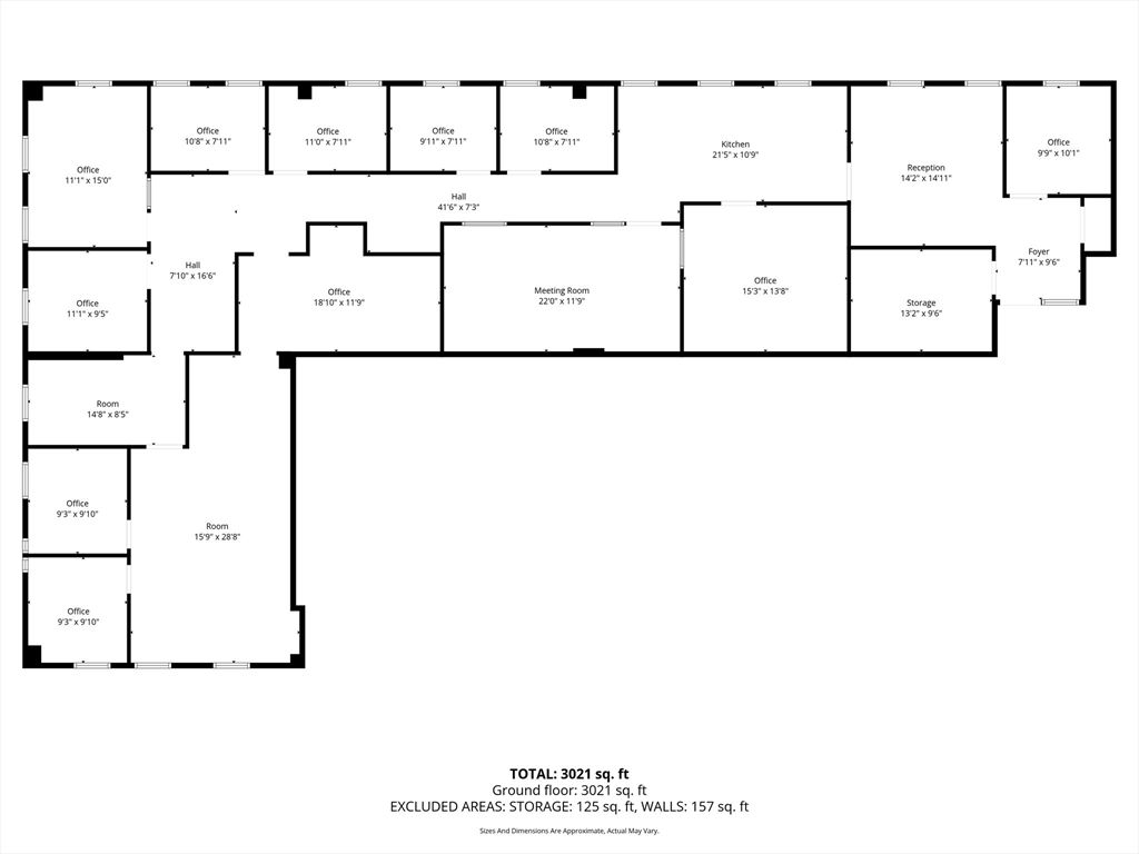
3,700sf second-floor professional office suite in the Rowley Business Park, located directly on Route 1. This sun-drenched suite has a large open office area, conference rooms, many private offices, and a kitchen. The suite is accessible via elevator or staircase and has restrooms in the common area. This is a NNN lease; the tenant pays utilities and NNN expenses in addition to base rent. The space is serviced by an elevator and a large open staircase. The Rowley Business Park is situated directly on historic Route 1, with a high traffic count (12,000 AADT) and excellent demographics. This great-looking building projects a professional presence, beautifully landscaped and well-maintained, with plenty of parking in front and side of the building. Ideally located 6 miles from downtown Newburyport, 3.5 miles to I-95, and a half-mile to Route 133. Prospective tenants are encouraged to perform due diligence in all aspects of a contemplated tenancy. NNN fees are currently $3.95psf.
| Login to view Features |
| ADDITIONAL DETAILS | |
| Login to view Additional Details |
MORTGAGE CALCULATOR
TOTAL MONTHLY PAYMENT
0
P
I
*Estimate only
| SATELLITE VIEW |
| / | |
We respect your online privacy and will never spam you. By submitting this form with your telephone number
you are consenting for Frank
Bertolino to contact you even if your name is on a Federal or State
"Do not call List".
Listing provided by Faulkner Commercial Group, Keller Williams Realty
The property listing data and information set forth herein were provided to MLS Property Information Network, Inc. from third party sources, including sellers, lessors and public records, and were compiled by MLS Property Information Network, Inc. The property listing data and information are for the personal, non commercial use of consumers having a good faith interest in purchasing or leasing listed properties of the type displayed to them and may not be used for any purpose other than to identify prospective properties which such consumers may have a good faith interest in purchasing or leasing. MLS Property Information Network, Inc. and its subscribers disclaim any and all representations and warranties as to the accuracy of the property listing data and information set forth herein.
This IDX solution is (c) Diverse Solutions 2026.
